vorheriges Dokument
nächstes Dokument

Anlage 1 Errichtung und Betrieb des Universitätszentrums für Weiterbildung (Donau-Universität Krems) (Bund – NÖ)

Aktuelle FassungIn Kraft seit 21.5.1994

Anlage 1

ANLAGE

emäß (Anm.: richtig: gemäß) Art. IV Z 1 der Vereinbarung zum Bundesgesetz über die Errichtung eines Universitätszentrums für Weiterbildung Donau-Universität Krems)

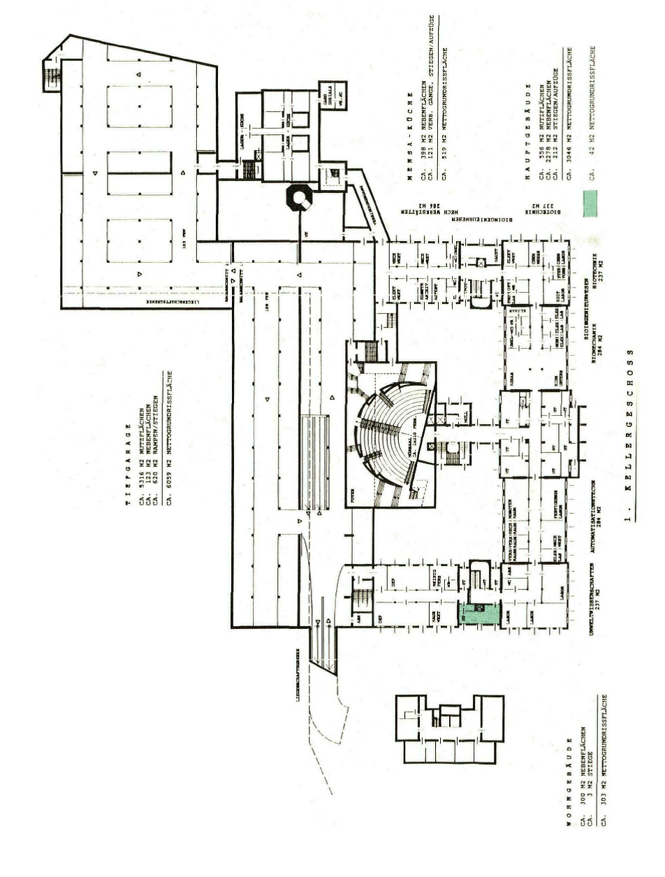
Wissenschaftliche Landesakademie für Niederösterreich EZ 355, GStNr. 363

 

ZUSAMMENFASSUNG

GESCHOSS

Nutzflächen

Nebenflächen

Verkehrsflächen

Gesamt

Keller

-

42

-

42

ERDGESCHOSS

1.236

208

472

1.916

1. STOCK

618

(454)''p''

104

252

(16)''p''

974

(470)''p''

2. STOCK

411

(597)''p''

81

187

(33)''p''

679

(630)''p''

3. STOCK

365

87

186

638

GESAMTFLÄCHEN

MIT

PROVISORIEN

3.681

522

1.146

5.349

     

Zuletzt aktualisiert am

12.02.2025

Gesetzesnummer

10001349

Dokumentnummer

NOR12014966

alte Dokumentnummer

N1199438497J

Lizenziert vom RIS (ris.bka.gv.at - CC BY 4.0 DEED)